Offers in Excess of £475,000

Crescent Road, Beckenham BR3

2 1 2

Key Features

  • Beautiful Church Conversion with original features
  • 2 Double Bedrooms
  • 2 Bathrooms
  • Immaculate Condition
  • Share of Freehold
  • No Onward Chain

With a history dating back to 1878, Spire Court is a remarkable conversion of a former church, developed into a collection of 12 apartments over a two-year period beginning in 2004 by WDS Design Ltd. The sympathetic refurbishment, which earned the building a local listed status, celebrates the original character of the church, with many apartments retaining period features. Notably, the granite used for the kitchens was sourced from the very same Scottish quarry that supplied the granite cladding on the church’s original columns, adding a unique touch of authenticity.

This immaculately presented two-bedroom, two-bathroom apartment has been meticulously maintained by its current owner and is ideally suited to couples, young families, professionals working from home, or those looking to downsize without compromise. Offering a share of the freehold, a lengthy lease, an allocated parking space, and the benefit of no onward chain, this property combines elegance and convenience.

Positioned on the second floor and accessible via a communal staircase or lift, the entrance hall immediately impresses with its tiled flooring, stained glass windows, and intricately carved stone archways. The apartment itself is well-proportioned, featuring two genuine double bedrooms with mirror fronted fitted wardrobes, a master bedroom with en suite bathroom, a separate shower room, and a modern kitchen fitted with a range of sleek wall and base units.

For commuters, the property is exceptionally well-connected, located just 0.6 miles from Beckenham Junction, 0.7 miles from Ravensbourne, and 0.8 miles from Shortlands railway stations, with regular services to London Victoria, London Blackfriars, and London Bridge. The 227 bus route is just a short walk away, offering easy access to Bromley Town Centre, Crystal Palace, and Beckenham High Street, which is home to a wide variety of shops, restaurants, and leisure facilities. Local green spaces, including Kelsey Park, are nearby, while Clare House Primary, Harris Primary, and St Mary’s Catholic Primary schools are all within half a mile, making this an excellent choice for families.

Spire Court is a truly unique development that blends historic charm with modern living, and this apartment is a prime example of its exceptional design and quality. Double glazing, a communal lift, a security entry phone system, and an alarm are further highlights. In our view, this property will generate significant interest and early viewing is highly recommended to avoid disappointment.

Tenure : Share of Freehold    Service Charge : £1328 every six months - includes reserve fund     Ground Rent : N/A     Council Tax : Band E


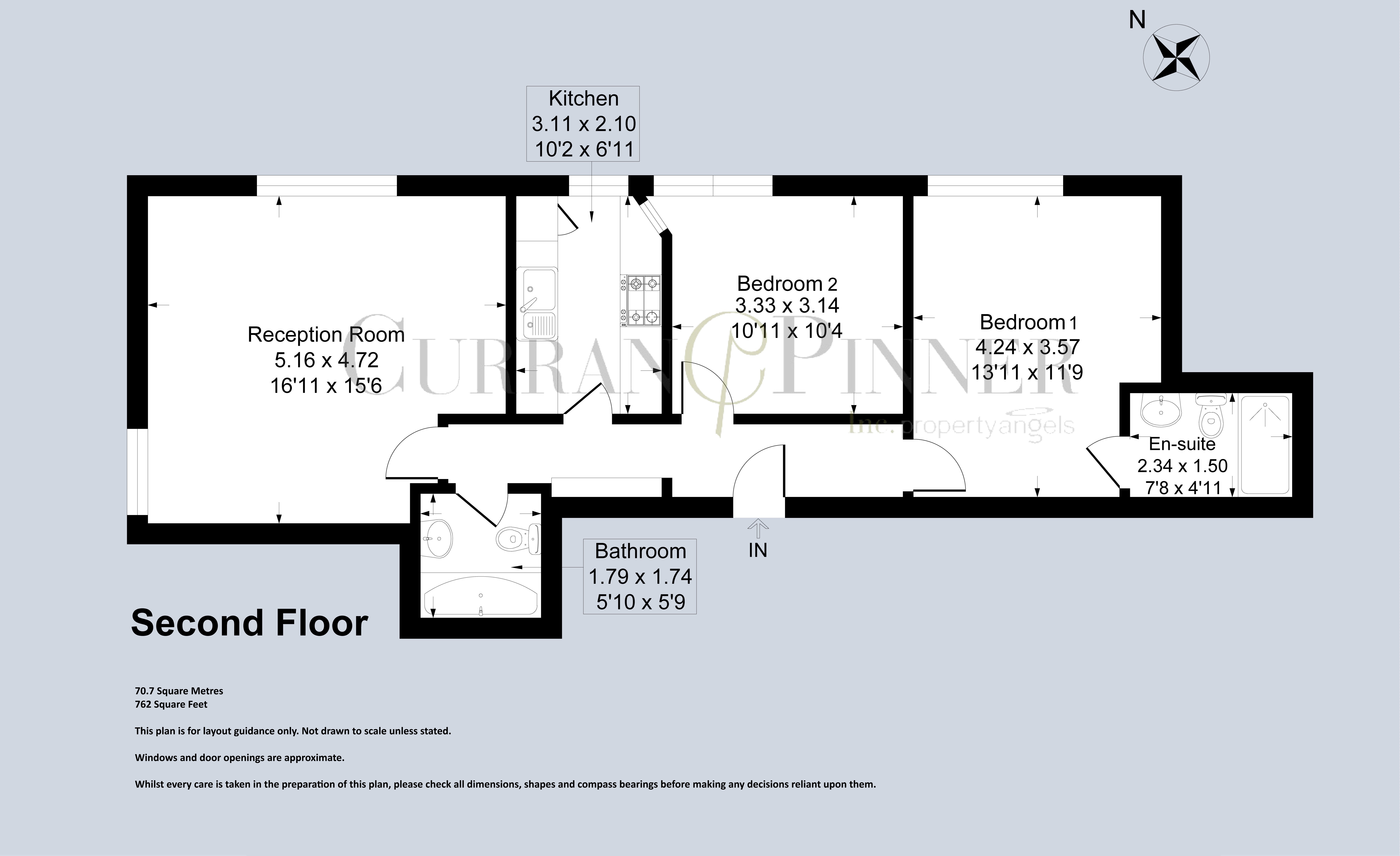
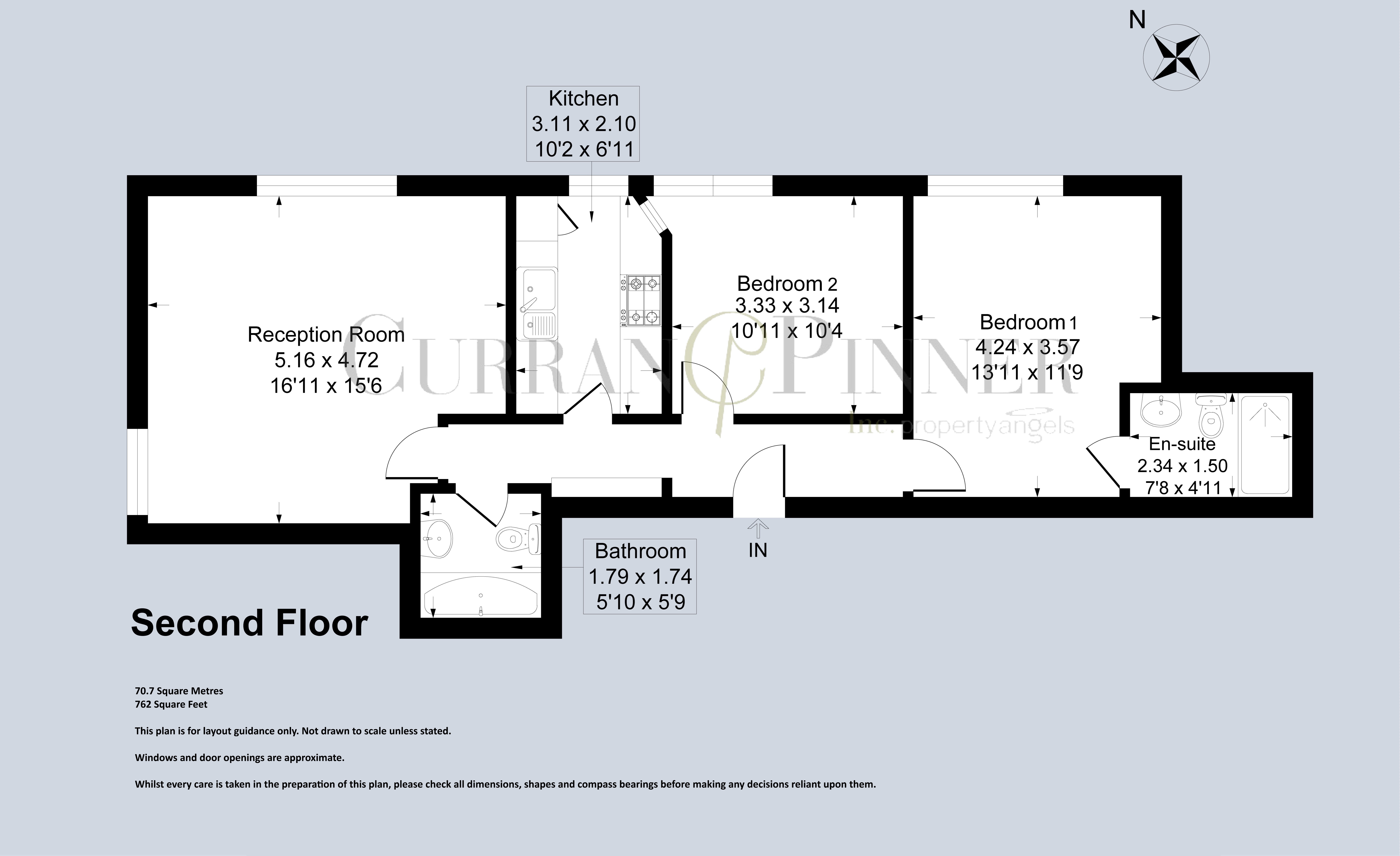
Rooms

Reception Room

5.16m x 4.72m (16' 11" x 15' 6")

Kitchen

3.11m x 2.10m (10' 2" x 6’ 11")

Bedroom 1

4.24m x 3.57m (13' 11" x 11' 9")

Bedroom 2

3.33m x 3.14m (10' 11" x 10' 4")

Bathroom

1.79m x 1.74m (5' 10" x 5' 9")

En Suite

2.34m x 1.50m (7' 8" x 4' 11")
Register for Property Updates